PSS

Saint-Herblain - Bagatelle

Ce fil de discussion concerne les immeubles suivants :

NomFonction(s)HauteurNiveauxAnnée
Floréli Logements 36.00 m R+11 2028
Regards sur Parc Logements 24.00 m R+7 2021
Vert Eden Logements 18.00 m R+5 2021
Canopée Logements 27.00 m R+8 2019
Alhéna Logements, Santé 12.00 m R+3 2018
Parc Bagatelle Logements 12.00 m R+3 2017
Urban Park Logements 30.00 m R+9 2017
Villa Borghèse - Bât. A Logements, Bureaux 36.00 m R+11 2016
Beehive Logements, Commerces et activités 33.00 m R+10 2016
Villa Borghèse - Bât. B Logements, Bureaux 36.00 m R+11 2016
Parc en Scène - Bât. A Logements 36.00 m R+11 2015
Les 3 Lions Bureaux 21.00 m R+5 2015
Parc en Scène - Bât. B Logements 33.00 m R+10 2015
Les Hauts de Bagatelle - Bât. E Logements 33.00 m R+10 2014
Les Hauts de Bagatelle - Bât. C Logements 18.00 m R+5 2014
Le Paquebot Bureaux 24.50 m R+6 2014
Les Hauts de Bagatelle - Bât. D Logements 27.00 m R+8 2014
Les Hauts de Bagatelle - Bât. A Logements, Éducation 30.00 m R+9 2014
Résidence Excelys Logements 30.00 m R+9 2013
Green Park Bureaux 17.50 m R+4 2013
École Pigier Éducation 15.00 m R+4 2013
Biofortis Bureaux, Laboratoire 7.00 m R+1 2012
Voir la liste complète Afficher moins
 
#76
17-03-2015 01:27
Drey
Tour Eiffel
Lieu: Nantes/Bordeaux
Date d'inscription: 18-03-2007
Hors ligne

Concernant le pôle de bureaux "Orisis", il s'agira de 4 bâtiments de bureaux en R+9 (+mezzanine) donnant directement sur le périphérique:

http://zupimages.net/up/15/12/k4xx.png
© AIA

Phase 1/ Îlot A - 3300m² (commerce/bureaux)
Phase 2/ Îlot B et C - 11000m² (bureaux)
Phase 3/ Îlot G - Parking 250 places
Phase 4/ Îlot D - 6500m² (bureaux)
Phase 5/ Îlot E et F - 8000m² (bureaux)

http://www.pays-de-la-loire.developpeme … nnexes.pdf

Selon de dossier, nous pouvons nous attendre à un ensemble qui se démarque des ensembles de bureaux que l'on peut voir se construire dans l'agglomération (référence architecturale, pour l'intégration: Agence RCR ... tout de même).

Par ailleurs, un projet urbain est en réflexion au delà du périphérique:

http://zupimages.net/up/15/12/qiro.png

B6


"Une ville achevée est une ville morte"

Dernière modification par Drey: 17-03-2015 01:34
#77
17-03-2015 22:43
le renard
Modérateur carnassier
Lieu: Lyon
Date d'inscription: 17-01-2006
Site web
Hors ligne

Drey a écrit:

référence architecturale, pour l'intégration: Agence RCR ... tout de même

euh... AIA plutôt, ou j'ai loupé un truc ? D1


*** Skyscraper Spirit Wonder Llama ***

#78
17-03-2015 22:55
Drey
Tour Eiffel
Lieu: Nantes/Bordeaux
Date d'inscription: 18-03-2007
Hors ligne

le renard a écrit:

Drey a écrit:

référence architecturale, pour l'intégration: Agence RCR ... tout de même

euh... AIA plutôt, ou j'ai loupé un truc ? D1

A la fin du dossier, un exemple est choisit pour exprimer le principe d'implantation. Il s'agit de la Casa Rural de l'agence Espagnole RCR. Prometteur, dans l'intention:

http://subtilitas.tumblr.com/post/48153 … casa-rural

B5


"Une ville achevée est une ville morte"

#79
17-03-2015 23:08
le renard
Modérateur carnassier
Lieu: Lyon
Date d'inscription: 17-01-2006
Site web
Hors ligne

Ok, j'avais mal compris. A7


*** Skyscraper Spirit Wonder Llama ***

#80
22-08-2015 18:01
eiffel-ô
Tour First
Lieu: Nantes
Date d'inscription: 03-08-2008
Hors ligne

Le précédent PC de 2014 pour le programme tertiaire Osiris indiquait 45 000 m² à construire. Un nouveau PC du 24/04/2015 indique maintenant 29 000 m² B7 Le nombre de lots passe de 8 à 7.


Ma carte des opérations d'urbanisme sur le Nord-Vendée (12 pages) :
https://maps.google.fr/maps/ms?msid=203 … &msa=0

#81
20-09-2015 23:47
Drey
Tour Eiffel
Lieu: Nantes/Bordeaux
Date d'inscription: 18-03-2007
Hors ligne

Projet lauréat

Ilot F/ 123 logements

http://zupimages.net/up/15/38/myp6.jpg
© Barré-Lambot

http://www.barre-lambot.com/actualite/2 … bagatelle-


"Une ville achevée est une ville morte"

#82
21-09-2015 00:12
le renard
Modérateur carnassier
Lieu: Lyon
Date d'inscription: 17-01-2006
Site web
Hors ligne

Sympa ces rondeurs. B6


*** Skyscraper Spirit Wonder Llama ***

#83
21-09-2015 12:56
I
invité02
Compte supprimé
I

Il y a combien  d'immeubles en projet là-bas car mine de rien ça commence à faire un vrai quartier!

#84
21-09-2015 17:26
colonel
Grande Arche
Lieu: nantes
Date d'inscription: 29-05-2015
Hors ligne

le renard a écrit:

Sympa ces rondeurs. B6

Le problème des façades en bois, c'est que ça va vite avoir aspect "bois mort" dans quelques années, comme l’école qui est a coté des machines ...


La plupart des gens disent qu’on a besoin d’amour pour vivre. En fait, on a surtout besoin d’oxygène... (Dr House)
Il n'y a pas d'enfer, il n'y a que la France. (Frank Zappa)

#85
21-09-2015 18:36
postage
The Link
Lieu: Nantes
Date d'inscription: 28-12-2013
Hors ligne

Hélas, avec certaines façades en métacrylate et autres plastiques noyés de résine.... on va avoir des surprises dans 10/15 ans...

#86
25-10-2015 20:14
Drey
Tour Eiffel
Lieu: Nantes/Bordeaux
Date d'inscription: 18-03-2007
Hors ligne

Des photos du programme Beehive sont disponibles sur le site de GHT Coop:

http://www.ghtcoop.fr/beehive-apparteme … -herblain/


"Une ville achevée est une ville morte"

#87
27-10-2015 13:59
Drey
Tour Eiffel
Lieu: Nantes/Bordeaux
Date d'inscription: 18-03-2007
Hors ligne

Projet lauréat

Îlot L - Maison médicale et 27 logements

http://zupimages.net/up/15/44/o3rl.jpg
© a/LTA/Air Studio
http://zupimages.net/up/15/44/8x5n.jpg
© a/LTA/Air Studio

Lieu: Ecoquartier Bagatelle _ Ilot L_Saint Herblain (44)
Maitre d’ouvrage: Groupe Launay
Aménageur: Loire Océan Développement LOD
Urbaniste: IN SITU A&E + FORMA 6
Livraison : projet LAUREAT
Surface: 1 732 m² SP (logements) + 700 m² SP (maison médicale)
Programme: 27 logements + maison médicale
Equipe: mandataire a/LTA  + Ouest Structures + ALBDO + LEMONNIER + ZEPHYR PAYSAGES

http://www.a-lta.fr/portfolios/maison-m … -herblain/


"Une ville achevée est une ville morte"

#88
15-12-2015 20:34
Drey
Tour Eiffel
Lieu: Nantes/Bordeaux
Date d'inscription: 18-03-2007
Hors ligne

Un autre rendu de l'îlot F

http://zupimages.net/up/15/51/2kxw.jpg
© Barré-Lambot

http://www.tolefipromotions.com/nos-projets/bagatelle/


"Une ville achevée est une ville morte"

Dernière modification par Drey: 06-01-2016 19:04
#89
16-12-2015 17:00
Maxtod
Notre-Dame de Paris
Lieu: Nantes
Date d'inscription: 09-11-2015
Hors ligne

Je trouve le rendu de ces immeubles franchement réussi avec leurs revêtements bois ! La gestion des espaces verts autour des résidences semble maîtrisée, tout du moins sur le rendu !

#90
06-01-2016 19:03
Drey
Tour Eiffel
Lieu: Nantes/Bordeaux
Date d'inscription: 18-03-2007
Hors ligne

Projet non lauréat

Ilot G/ 89 logements collectifs à St Herblain

http://zupimages.net/up/16/01/z590.jpg
© Guinée-Potin

Les implantations définies par le plan de masse directeur des agences d’urbanistes Forma 6 et In Situae, posent notre projet au carrefour de typologies et de densités construites diversifiées. Dès lors notre intervention choisit une volumétrie, haute et compacte, prescrite par les urbanistes au sein de ce contexte, contribuant ainsi à la future identité de l’îlot.

Maître d’ouvrage: CIF Coopérative
Urbaniste: Forma 6 et In situae
Architecte mandataire: Guinée*Potin Architectes
Paysagiste: Zephyr
Surface: 5437 m² SHAB

http://www.guineepotin.fr/index.php?/pa … -bretagne/


"Une ville achevée est une ville morte"

#91
01-02-2016 02:59
Drey
Tour Eiffel
Lieu: Nantes/Bordeaux
Date d'inscription: 18-03-2007
Hors ligne

Projet lauréat

Ilot G/ 89 logements

http://zupimages.net/up/16/05/wpge.jpg
© Leibar-Seigneurin
http://zupimages.net/up/16/05/ufbu.jpg
© Leibar-Seigneurin

Maîtrise d’ouvrage: Groupe Cif

http://leibarseigneurin.com/2016/01/con … bagatelle/


"Une ville achevée est une ville morte"

#92
02-02-2016 15:44
M
manux
Tour du Midi
M
Lieu: Nantes-Lille
Date d'inscription: 26-03-2014
Hors ligne

Drey a écrit:

Projet lauréat

Ilot G/ 89 logements

http://zupimages.net/up/16/05/wpge.jpg
© Leibar-Seigneurin
http://zupimages.net/up/16/05/ufbu.jpg
© Leibar-Seigneurin

Maîtrise d’ouvrage: Groupe Cif

http://leibarseigneurin.com/2016/01/con … bagatelle/

Pas très beau comme projet ....  F2  F2
Le projet tolefi (post#88 15-12-2015 20:34:58) avait quand même vachement plus de gueule, plus un projet "futuriste" qui s’intègre bien dans l'environnement , que le projet lauréat, qui a mon avis va mal vieillir ....

Dernière modification par manux: 02-02-2016 15:45
#93
02-02-2016 16:36
Indé.pdt
Tour Montparnasse
Date d'inscription: 03-09-2015
Hors ligne

manux a écrit:

Drey a écrit:

Projet lauréat

Ilot G/ 89 logements

http://zupimages.net/up/16/05/wpge.jpg
© Leibar-Seigneurin
http://zupimages.net/up/16/05/ufbu.jpg
© Leibar-Seigneurin

Maîtrise d’ouvrage: Groupe Cif

http://leibarseigneurin.com/2016/01/con … bagatelle/

Pas très beau comme projet ....  F2  F2
Le projet tolefi (post#88 15-12-2015 20:34:58) avait quand même vachement plus de gueule, plus un projet "futuriste" qui s’intègre bien dans l'environnement , que le projet lauréat, qui a mon avis va mal vieillir ....

Tu confonds les deux projets : les deux sont retenus sauf que l'un est F l'autre G.


L'architecture est art de suggestion / @Nantes

#94
02-02-2016 23:20
le renard
Modérateur carnassier
Lieu: Lyon
Date d'inscription: 17-01-2006
Site web
Hors ligne

Je trouve au contraire l'îlot G plutôt sympatique avec ses cabanes de bois en porte-à-faux. Les goûts et les couleurs...

Leibar et Seigneurin vont finir par ouvrir une succursale à Nantes avec tout ce qu'ils construisent ici !


*** Skyscraper Spirit Wonder Llama ***

#95
08-04-2016 23:57
Drey
Tour Eiffel
Lieu: Nantes/Bordeaux
Date d'inscription: 18-03-2007
Hors ligne

Le projet de bureaux nommé précédemment "Osiris", se nomme maintenant "Opus". La commercialisation devrait se faire prochainement, une page venant d'être crée sur le site du groupe Giboire. Vivement les premiers visuels.

http://www.giboire-promotion.com/bureau … search=3/4


"Une ville achevée est une ville morte"

#96
09-04-2016 10:21
I
invité02
Compte supprimé
I

Il y a encore beaucoup de programmes de prévus pour Bagatelle? Je ne pensais pas qu'il y aurait autant d'immeubles et pour moi ça restait limité à 4 ou 5 tours alors que là c'est beaucoup plus!

#97
09-04-2016 12:35
Drey
Tour Eiffel
Lieu: Nantes/Bordeaux
Date d'inscription: 18-03-2007
Hors ligne

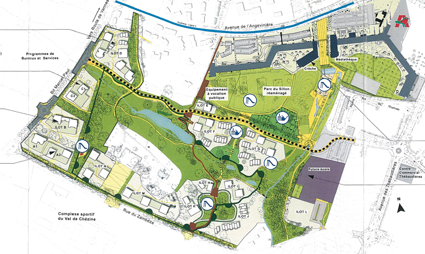
Pour l'instant, le quartier propose:

Construit

4 x R+11
2 x R+10
R+8

En projet (dévoilé)

2x R+9
2x R+7

Il reste une dizaine de plots pouvant accueillir des immeubles "hauts":

http://zupimages.net/up/16/14/xej5.png
© InSitu
http://zupimages.net/up/16/14/uv2x.jpg
© InSitu


"Une ville achevée est une ville morte"

#98
09-04-2016 14:12
I
invité02
Compte supprimé
I

Je viens de passer par là et j'ai vu OPUS (25 000m²). Il y a Green Park de Blot aussi, le quartier ne vas pas manquer de bureaux!

#99
09-04-2016 16:10
Drey
Tour Eiffel
Lieu: Nantes/Bordeaux
Date d'inscription: 18-03-2007
Hors ligne

Tu as vu un permis de construire sur le terrain?


"Une ville achevée est une ville morte"

09-04-2016 18:14
I
invité02
Compte supprimé
I

Non mais un grand panneaux pub de Blot qui donne sur le Bd Marcel Paul.

 

Copyright © 2006-2025 PSS