Publicité
| Nom | Fonction(s) | Hauteur | Niveaux | Année |
|---|---|---|---|---|
The Link |
Bureaux, Commerces et activités | 241.57 m | R+50 | 2025 |
Le Michelet |
Bureaux | 46.00 m | R+12 | 1986 |
Milo a écrit:
![]()
La médiocre et horrible Liebherr HCL est en cours de montage
Milo, pourquoi tant de haine envers les grues liebherr ? Performances ? Esthétique ? 
Aïe aïe aïe malheureux, tu as posé LA question ! ^^
Le jour où ce mystère sera résolu sera certainement celui où Milo nous dévoilera sa véritable identité et nous laissera dans un adieu poignant pour rejoindre sa planète d'origine ^^
Paris Sur la Seine allongé,
Paris. Senteurs, Saveurs,
Paris Sur la Scène.
Publicité
J'ai raté une partie car j'étais à Lyon pour 2 jours et là je ne suis pas disponible pour aller prendre des photos mais je vois que la dalle en béton a été couler pour poser la grue.
Pourquoi tant de problème pour une grue ? 
AxCAD a écrit:
Milo a écrit:
![]()
La médiocre et horrible Liebherr HCL est en cours de montageMilo, pourquoi tant de haine envers les grues liebherr ? Performances ? Esthétique ?
Ce n'est pas envers les Liebherr celles à cabines dans le mat sont très bien esthétiquement et technologiquement mais les HCL et ECB à cabine latérale représentent ce qu'il y a de pire comme grue.
Savez-vous si on peut faire un recours suspensif pour interdire ces m....
?
En attendant de ne plus jamais voir ces immondes grues L. HCL sur des chantiers voici quelques clichés du jour



Aujourd'hui coulage du radier au niveau du socle de la future belle Potain

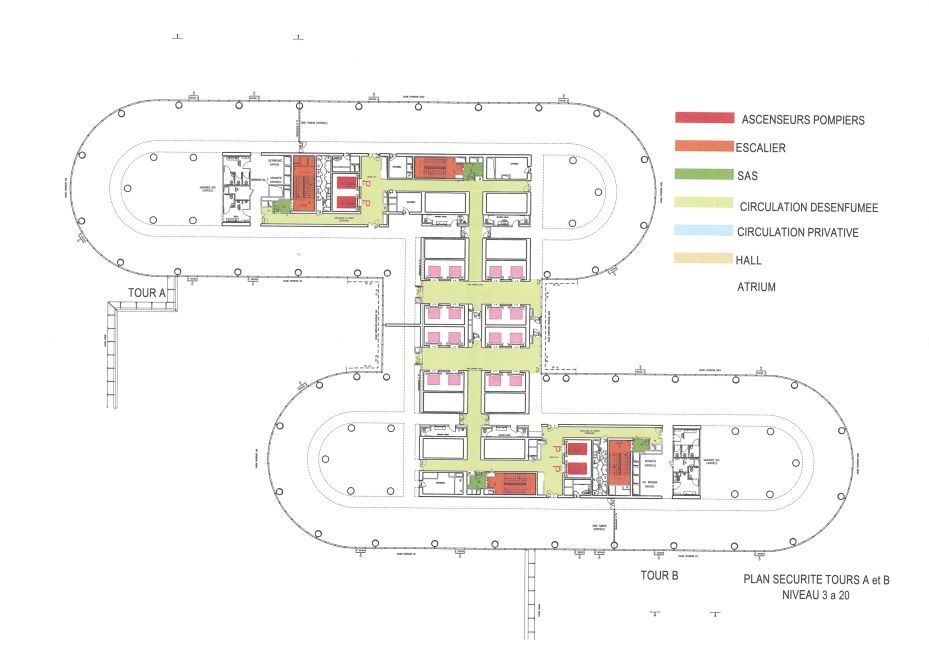
Comparaison des tours The Link (les liens) et des Tours Cœur Défense :
Le système est le même presque sauf que le noyau central des Tours The Link se trouvent au centre de la tour dans chacune des deux tours :
Sauf que pour ces deux Tours de Cœurs Défense les niveaux sont reliés eux aussi par des liens mais par les ascenseurs qui distribuent les étages de bureaux de la Tour A d'un côté et la Tour B de l'autre côté :
Le principe est le même sauf que l'architecte Phillipe Chiambaretta a mis des liens avec des terrasses extérieurs, et des escaliers pour éviter de prendre une cabine d'ascenseur pour 1 ou 2 niveaux via aux liens d'où sont nom " The Link ". Le système des terrasses extérieurs dans les années 2000 n'existaient pas encore à l'époque dans la construction des tours. Aujourd'hui, on en trouvent partout, dans tout les immeubles afin que les gens puissent se détendent et prendre l'air sans sortir de la tour ou fumée tout simplement une cigarette sans sortir du complexe.
Je viens de rajouter aussi à l'instant la taille des plateaux : 24 mètres de large pour Cœur Défense, les tours The Link, je ne connais pas la taille, mais cela apporte de la lumière naturelle au système et cœur du bâtiment.
6000m2 par étage et donc 3000m2 dans la tour relié par The Link (les liens) qui sers de sécurité en cas d'incendie d'une tour A ou tour B pour descendre soit par A ou B sauf si elle dépasse la hauteur de l'autre côté dans la tour qui se trouve à gauche sur le dessin dans le message plus haut : descente plus difficile en cas d'incendie où les tours s'arrêtent au chiffre 8 comme ceux des tours Cœur Défense mais le projet de départ était donc une 220 m et l'autre de 180 m de haut alors que les deux tours ont la même hauteur. Car le projet fut finalement abandonné.
Les Tours Sisters ont le même principe mais sous un autre ordre : une plate-forme reliée entre les deux tours à une hauteur de 121 mètres de haut environ (hauteur de la tour de l'hôtel) relié à celle de bureaux beaucoup plus haut 221 mètres. Il est sur plusieurs niveaux aussi (4 je crois) comportant restaurants, commerces, et activités. Ce projet là permet simplement le passage de la passerelle Carpeaux en-dessous où les ouvertures de la tour seront sur le parvis. Hôtel côté nord-est : là où se trouve l'accès des voitures de taxis arrivant sur la place du même nom afin de déposer les personnes.
Voici le fichier PDF fonctionne, des informations pour vous tous :
Merci pour le partage Julien, hélas le lien du PDF ne fonctionne déjà plus.
il marche, fait un copié collé dans ton URL 
Savez-vous quand la belle Potain va être montée ? Le radier semble sec...

Reportage du jour, poursuite du coulage du radier avec un balai de toupies roses







Quelle est la boîte qui a ces toupies roses ? :)
BSM (Béton solutions mobiles)
PSS a besoin de vous pour assurer son existence et son développement futur
--> https://fr.tipeee.com/pss-archi
AngeliuS a écrit:
Quelle est la boîte qui a ces toupies roses ? :)
C'est marrant que cette question, que j'ai posée il y a plusieurs années, revienne régulièrement ! !
Il y a aussi une entreprise TP avec des engins roses..
Est-ce la même ?
On commence à les croiser souvent les toupies roses.
Il y a aussi les fameuse suceuses de l'ouest qui arborent fièrement cette belle couleur !
J'ai eu peur en cliquant, mais non en fait, c'est sérieux 
il y a aussi Les Compagnons du Placard

Photos du 19/6, les banches de coffrage commencent à apparaitre et leur hauteur est impressionnante (équivalent à 4 étages ?)





merci pour vos photos des chantiers pour ceux qui n'ont pas la possibilité d'y passer !
Tout dépend de la hauteur d'un étage, mais on est bien sur 4 hauteurs de 2.80 effectivement.
Ça serait déjà un R+4 sur la majorité des chantiers de logements.
Le trou va être vite rempli vu la vitesse à laquelle les constructions sont effectuées.
La quatrième grue, une belle Potain, est en cours de montage...
Coulage d'une autre partie du Radier...









Impressionnant d'imaginer la logistique nécessaire pour organiser les rotations de toupies et celles de tous les camions pompes.
J'ai l'impression que les toupies se branchent sur des attentes au niveau haut et que les pompes récupèrent le béton en dessous pour l'envoyer au fond "du trou"...
Le nettoyage de toute l'installation, chaque soir, doit être coton ! !
Publicité