Publicité
| Nom | Fonction(s) | Hauteur | Niveaux | Année |
|---|---|---|---|---|
Gare maritime de Brest |
Transports | 12.00 m | R+2 | 2028 |
Siège social de Guyot Environnement |
Bureaux | 39.50 m | R+9 | 2024 |
Le Surcouf Appart'Hotel |
Hôtel, Bureaux | 18.00 m | R+5 | 2023 |
Le Signal |
Musée, Culture | 23.34 m | R+6 | 2023 |
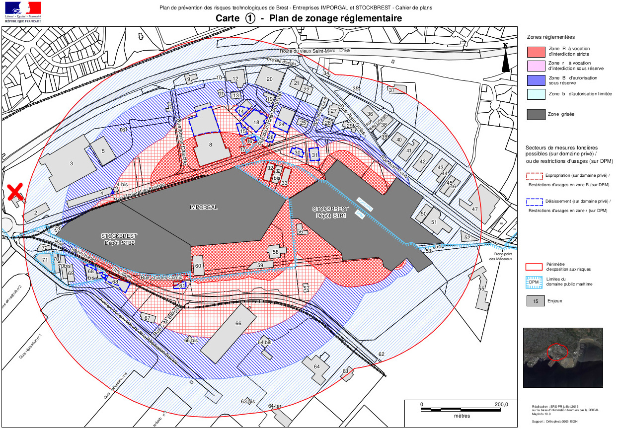
Ce n'est pas le PPI qu'il faut regarder (ce plan est pour l'organisation des secours) mais le PPRT avec ses différents zonages qui est inclus dans le PLU.
Côté Guyot, c'est au même endroit par conter vers la ville, ça ne dépasse pas la ligne de chemin de fer.
Vous vous doutez bien que si les Perles de Saint-Marc avait eu un permis malgré cette zone, les opposants se seraient engouffrés dans la brèche.
Je pense bien aussi, ma magie des découpages 
Publicité
Dark Nark a écrit:
Ce n'est pas le PPI qu'il faut regarder (ce plan est pour l'organisation des secours) mais le PPRT avec ses différents zonages qui est inclus dans le PLU.
Brest Métropole et l’État ne semblent pas être sur la même longueur d'onde...
1/ Il n'y a rien dans le PLUi... C'est "circulez, y'a rien à voir" dans cette partie du port...
(La croix rouge indique la tour Guyot.)
2/ Le zonage PPRT effleure toujours le projet Guyot au mètre près...
(La croix rouge indique la tour Guyot.)
(Sources : https://www.brest.fr/dessiner-un-urbani … -1746.html et https://www.finistere.gouv.fr/Politique … st-a-Brest)

MajorTom a écrit:
Dark Nark a écrit:
Ce n'est pas le PPI qu'il faut regarder (ce plan est pour l'organisation des secours) mais le PPRT avec ses différents zonages qui est inclus dans le PLU.
Brest Métropole et l’État ne semblent pas être sur la même longueur d'onde...
1/ Il n'y a rien dans le PLUi... C'est "circulez, y'a rien à voir" dans cette partie du port...
(La croix rouge indique la tour Guyot.)
https://zupimages.net/up/22/30/e9od.jpg
2/ Le zonage PPRT effleure toujours le projet Guyot au mètre près...
(La croix rouge indique la tour Guyot.)
https://zupimages.net/up/22/30/v0s5.jpg
(Sources : https://www.brest.fr/dessiner-un-urbani … -1746.html et https://www.finistere.gouv.fr/Politique … st-a-Brest)
Dans le PLUi, ce n'est pas dans Document graphique 3, c'est dans Annexe graphique 3. 
La plate-forme est prête pour la tour en tout cas, plus à attendre les fondations à la fin du mois prochain si ça s'enchaîne...
Les cales du Rio Ta ont disparu cette semaine, il ne restera bientôt plus que le fond du navire 
Chantier terminé au moins en forme 1 pour le Rio Tagus, ils finissaient de nettoyer et de ranger cet après-midi... L'Abeille Languedoc était en cours de désarmement avec sa grue et une Reggiane 
Dommage de ne pas pouvoir aller voir de près... Je ne comprends pas pourquoi on ne vire pas ces p*tains de grillages qui nous privent de notre littoral surtout qu'aujourd'hui avec la vidéo surveillance il ne serait pas difficile d'attraper ceux qui font un pas de travers... À la place ils augmentent les sanctions 
Nouvelle étape vers la déconstruction de l’Abeille Languedoc à Brest
https://www.letelegramme.fr/finistere/b … 146804.php

A ne rien comprendre, un jour ils doivent détruire le "hangar à patates", un autre ils le rénovent.
Le « hangar à patates » du port de commerce de Brest reprend des couleurs
https://www.letelegramme.fr/finistere/b … 147875.php
J'ai assisté à la manœuvre vendredi midi avec deux Boluda dont le Mistral 7
le pont du Varzuga a été bien débarrassé 
Pose de l'enseigne"haizea breizh" sur le nouvel atelier d'assemblage des mats d'éoliennes du parc de St Brieuc sur le polder.
https://www.bretagne-economique.com/act … era-sur-le
Le navire a l'air vraiment trop propre pour partir en déconstruction !
HLZ317 a écrit:
Le navire a l'air vraiment trop propre pour partir en déconstruction !
Normal, ce remorqueur était en service jusqu'en juin dernier remplacé à Boulogne par l'Abeille Normandie. La compagnie a fait le choix de ne pas le remettre sur le marché de même que l'Abeille Flandre qui ne devrait plus tarder à rejoindre Brest remplacée par l'Abeille Méditerranée à Toulon.
J'ai l'impression qu'ils essayent de trouver un repreneur afin de proposer un projet alternatif à la déconstruction de ce dernier...
Le Pierre De Fermat vient d'arriver au cinquième bassin nord, je pense qu'il va passer en carénage en forme 1, normalement se serait au Varzuga de rentrer en forme 1 juste après pour sa déconstruction 
Un article est d'ailleurs paru aujourd'hui avec de vieilles informations et de vieilles photos sûrement pour boucher un trou dans le journal 
HLZ317 a écrit:
Le Pierre De Fermat vient d'arriver au cinquième bassin nord, je pense qu'il va passer en carénage en forme 1, normalement se serait au Varzuga de rentrer en forme 1 juste après pour sa déconstruction
Un article est d'ailleurs paru aujourd'hui avec de vieilles informations et de vieilles photos sûrement pour boucher un trou dans le journal
J'y ai pensé, mais plusieurs détails me font douter:
Le linéaire des lignes de tin misent en place dans le bassin me parait court pour le câblier.
Sa place habituelle à quai est occupée par le câblier britannique CS SOVERIEGN.
Il aurait aussi été mis à quai dans l'autre sens, proue vers la cale, pour éviter un demi tour pour ce présenter dans le bassin, (il peut aussi être rentré en marche arrière)
Dans la forme 1, il y a une fosse, celle ci a été ouverte et dévasée cette semaine, ce serait donc un navire avec un sonar qui occuperait la forme.
Ce ne sont que mes suppositions. Réponse lundi probablement
Quatorze jours de réparation pour le Stella Maris
Pas non plus pour le Stella Maris accueilli en forme 2 ! Lui qui semble énorme comparé à son prédécesseur le Penfret fait petit dans cette forme 
HLZ317 a écrit:
Pas non plus pour le Stella Maris accueilli en forme 2 ! Lui qui semble énorme comparé à son prédécesseur le Penfret fait petit dans cette forme
le Penfret qui a été vendu en 2015 ou le St Pierre?
Publicité