Publicité
| Nom | Fonction(s) | Hauteur | Niveaux | Année |
|---|---|---|---|---|
Cuisine centrale de Lille |
Autre | 8.00 m | R+1 | 2016 |
28 logements |
Logements | 12.00 m | R+3 | 2013 |
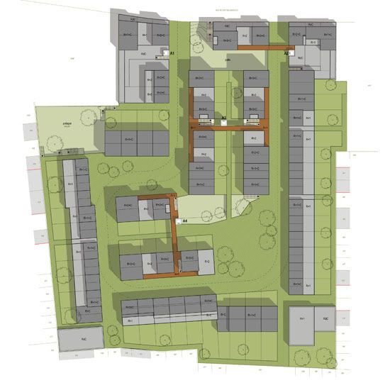
Friche Frémy-Courbet
Les infos sur le site de la ville.
Plan général
D'après un fond de plan trouvé sur le site de Béal & Blanckaert.
. 40 logements pour LMH par Béal & Blanckaert
8 maisons de ville le long de la rue Frémy, au nord :
32 logements collectifs, au sud, le long de la rue de l'Amiral Courbet :
. Résidence Les Costans (Escudié-Fermaut pour Pierres & Territoires de France) :


. 28 logements pour Foncière Logement par Luc Delemazure (pas de rendu
)
Publicité
Grand Projet urbain : la municipalité construit 54 logements en accession aidée à la propriété sur la friche Organum
jeudi 17.06.2010, 05:09 - La Voix du Nord
La première pierre de ces 54 logements a été symboliquement posée, hier matin. | FIVES |
Il y a quelques années, ici, on fabriquait des paillassons. Occupée un temps par une compagnie de théâtre de rue qui lui a laissé son nom, la friche Organum, rue de Rivoli, continue sa reconversion et accueillera, début 2011, 54 nouveaux logements. ...
Lille : 87 personnes déjà recrutées pour la future usine du village b'Twin
lundi 19.07.2010, 20:36 - La Voix du Nord
| Métropole lilloise |
Le groupe Oxylane tablait sur cinquante, en juillet 2009. Ils sont finalement 87 à avoir été recrutés le 12 juillet dernier pour intégrer la future usine du village b'Twin, qui ouvrira ses portes au public le 19 novembre dans le quartier du Petit-Maroc, à Lille.
http://www.lavoixdunord.fr/Locales/Lill … er-l.shtml
bienvenue schlow !
intéressantes tes photos, les points de vue sont inédites sur le forum, il me semble !
euralille 2 en toile de fond très sympa
tu les a prises depuis une des grues du chantier, tu y travailles?
merci,
oui je travaille pour la société de gros oeuvre , du coup j'ai profité pour faire les prises de vue depuis la deuxième grue.
Par contre j'espère que le temps va s'améliorer car pour le moment j'ai pas trop envie de repasser 
j'imagine ... 
Lille : ce dimanche, le futur b'Twin Village ouvre ses portes aux riverains et salariés
samedi 11.09.2010, 19:19 - La Voix du Nord
| Métropole lilloise |
Pour le grand public, il faudra encore attendre un petit peu : b'Twin Village ne sera pas inauguré avant le 18 novembre (on annonce Jean-Marie Leblanc, l'ancien directeur du Tour de France comme parrain).
Mais aujourd'hui, quelques privilégiés auront le droit de se promener sur l'ex-site Altadis naguère dédié à la fabrication de cigarettes : au personnel d'Oxylane (ex-Décathlon), s'ajoutent les riverains du Petit Maroc. L'idée est de faire une espèce de fête des voisins à grande échelle : " On s'installe, on invite les voisins ", résume Olivier Robinet, le patron de la marque b'Twin.
La rénovation de la crèche de Fives retardée d'un mois
mardi 14.09.2010, 05:10 - La Voix du Nord
Dans un an, pour amener Astrid à la crèche, sa maman Catherine ne se fatiguera plus à monter les marches. Merci l'ascenseur! | PETITE ENFANCE |
Initialement, les travaux devaient débuter en septembre, et durer un an.
Fives, capitale du vélo
La mise en route de l'usine b'Twin à Fives dans les locaux de l'ancienne usine Altadis va bon train. 500 emplois seront présents sur le site lorsque l'entreprise aura atteint son rythme de croisière. Un lieu d'exception entièrement dédié au vélo! Près de 200 emplois seront créés d'ici 2014, tous secteurs confondus (vente, assemblage, ingénierie). 500 emplois seront présents sur le site lorsque l'entreprise aura atteint son rythme de croisière. Le 12 septembre, les riverains du petit Maroc, qu'accompagnait Martine Aubry, ont pu découvrir le site en avant première avant son inauguration officielle le 19 novembre.
Le b'Twin Village à Lille, « Disneyland du vélo », en piste pour l'inauguration, jeudi
Un jour avant son ouverture au public, vendredi, le b'Twin Village accueille jeudi 1 200 invités qui découvriront les attractions de ce « monde merveilleux du vélo », comme l'annonce Olivier Robinet. Le directeur de la marque b'Twin (groupe Oxylane) soulève le voile.
plusieurs videos de l'inauguration du b'twin village, c'est pas mal du tout
Publié le 19/11/2010 | 12:03
Ca roule pour le b'Twin, le palais du vélo
http://nord-pas-de-calais-picardie.fran … 0100845_F3
http://nord-pas-de-calais-picardie.fran … 0100845_F3
http://www.lavoixeco.com/actualite/Doss … -pal.shtml
... et cette roue sur le parvi 
Éconduite de Lille-Sud, la cuisine centrale atterrira à Fivesmercredi 24.11.2010, 05:12 - La Voix du Nord
15000 plats sortiront chaque jour des cuisines du Petit-Maroc. | RESTAURATION SCOLAIRE |
Il y a quelques jours, on moquait le groupe Oxylane, qui confondait sur une affiche Lille-Sud et Fives.
Fives donne le vertige
A une quarantaine de mètres au-dessus du sol, le chantier de l'église Notre-Dame de Fives vient de démarrer. La première phase, la plus spectaculaire, s'intéresse au clocher et vise à restaurer les ardoises, refondre les cloches, etc. Visite guidée de travaux impressionnants.
http://www.nordeclair.fr/Locales/Lille/ … tige.shtml
Une belle enquête de Nord éclair (bien que trop succinte) sur le quartier Fives :
LILLE / ENQUÊTE (1/2)
Fives : ça ira mieux demain, mais quand ?
C'est un quartier qu'on dit en mutation. Une rengaine qui dure depuis des décennies maintenant. Les pieds dans son passé industriel, la tête dans les nuages d'un avenir meilleur, Fives s'accroche pourtant. Comme toujours. Ici, on s'échine. Et l'on s'arme de patience.
Nord éclair - 30/11/2010 - Julia MÉREAU et Marie TRANCHANT (http://www.nordeclair.fr/Locales/Lille/ … uand.shtml)
B'Twin sème les pissenlits au ventPublié le mardi 30 novembre 2010 à 06h00
Les Pissenlits d'Alix Petit sont visibles de l'autoroute. Œuvre de légèreté et de simplicité, elle est calibrée pour le regard de l'automobiliste.
L'usine b'Twin marque de son sceau la terre lilloise : des roues de vélos forment une oeuvre d'art visible à la croisée des routes. La structure est le fruit de l'imagination de la jeune artiste Alix Petit
http://www.nordeclair.fr/Locales/Lille/ … vent.shtml
quelqu'un l'a-t-il déjà aperçue? ils disent qu'elle est visible de l'autoroute !
jr50 a écrit:
quelqu'un l'a-t-il déjà aperçue? ils disent qu'elle est visible de l'autoroute !
Oui, tu ne peux pas les louper, ils sont sur les pyramides en pelouse à l'embranchement A1-A25... et c'est très moche... 
ils m'ont l'air pourtant satisfait des oeuvres installées, en tout cas ils l'encensent dans les différents reportages que j'ai pu lire et voir.
Remarque, la beauté est toute relative !
Chacun ses goûts, je l'admets tout à fait ! Je peux comprendre et je ne critique pas ceux qui aiment 
Suite et fin de l'enquête Nord éclair sur le quartier Fives : ou comment l'urbanisation peut influer sur la vie d'un quartier.
LILLE / ENQUÊTE (2/2) [Photos & Vidéo]
Ce sont les Fivois(es) qui en parlent le mieux...
Ils sont 20 000 à vivre à Fives. Autant d'histoires, de coups de cœur et de coups de gueule. Mais tous le reconnaissent : c'est un quartier attachant, de ceux qu'on critique mais qu'on n'aime pas voir pointé du doigt. Ils vivent à Fives, l'aiment et nous le racontent.
Nord éclair, 01/12/2010, Marie TRANCHANT et Julia MÉREAU (http://www.nordeclair.fr/Locales/Lille/ … t-le.shtml)
vidéo de ce que sera le programme de logements et le square à fremy-courbet, très explicite
http://gpu.mairie-lille.fr/galerie_vide … ation_site
Un projet entre FCB et la ZAC du Parc de la Filature :
BIENVENUE CHEZ VOUS
habitations et commerces HPE
Lieu : rue des Métallurgistes
Avancement : PC en cours
SHON : 13 800 m²
Coût : 22 000 000 Euros HT
Date : septembre 2009
(c) IN/ON Architecture
(c) IN/ON Architecture
(c) IN/ON Architecture
(c) IN/ON Architecture
(c) IN/ON Architecture
Fives : des améliorations mais encore des efforts à faire
Publié le vendredi 27 mai 2011 à 06h00
Hier, les Fivois ont pu découvrir le V'Lille, fabriqué à l'usine B'Twin.
Hier soir, la réunion publique de mi-mandat a montré que si les Fivois sont globalement contents de l'évolution du quartier, ils restent préoccupés par l'insécurité, le commerce
. Résidence Les Costans (Escudié-Fermaut pour Pierres & Territoires de France) :
Prise de vue à l'angle de la rue frémy / rue de l'amiral courbet
Publicité